|
||||||
| 物件名 | 所在地 | 専有面積 | 間取 構造 |
築年月 引渡時期 |
駐車場 駐車場料金 |
|
|---|---|---|---|---|---|---|
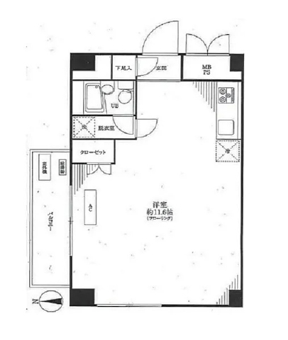
| メゾンド中延 | 品川区豊町6丁目 | 23.53m2 ( 7.11坪 ) | 1R 鉄筋コンクリート造 |
S59/02 相談 |
- |
|
| 物件番号 | Bm11853 | 取引条件有効期限 | 令和07年12月15日 | |||||||||||||||
|---|---|---|---|---|---|---|---|---|---|---|---|---|---|---|---|---|---|---|
| 交通 | 中延駅まで 徒歩1分 戸越公園駅まで 徒歩7分 荏原中延駅まで 徒歩10分 |
修繕費 | - | |||||||||||||||
| 総戸数 | 17戸 | 階/階建 | 2階/地上3階建 | |||||||||||||||
| 取引態様 | 仲介 | 用途地域 | 第一種住居地域 | |||||||||||||||
| 管理形態 | 自主管理 | バルコニ面積/向 | / | |||||||||||||||
| 特色 | 都市ガス、二階以上 | |||||||||||||||||
|
ローンを組むにあたり、月々の返済額をシミュレーションします。
|
||||||||||||||||||
※掲載されている物件データが現状と異なる場合は現状を優先します
地図
|
|
位置情報に関するご注意:現在位置情報は精査中の為、正確ではない場合があります。あくまで参考程度の情報となります。
![]()
- ピタットハウス洗足池店
株式会社ゲンコーポレーション
- TEL:03-3726-4726
- FAX:03-3726-4736






