|
||||||
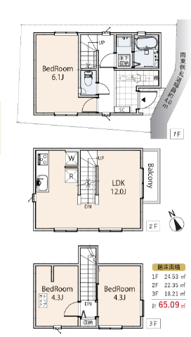
| 種目 | 所在地 | 土地面積 建物面積 |
構造 間取 |
築年月 引渡時期 |
土地権利 | |
|---|---|---|---|---|---|---|
| 新築戸建 | 品川区旗の台4丁目 | 39.48m2 ( 11.94坪 ) 65.09m2 ( 19.68坪 ) |
木造 3LDK |
R07/11 即時 |
所有権 | |
| 物件番号 | Bk11953 | 取引条件有効期限 | 令和08年2月23日 | |||||||||||||||
|---|---|---|---|---|---|---|---|---|---|---|---|---|---|---|---|---|---|---|
| 交通 | 旗の台駅まで 徒歩6分 旗の台駅まで 徒歩6分 |
学区 | ||||||||||||||||
| 建ぺい率 | 60% | 容積率 | 160% | |||||||||||||||
| 地目 | 用途地域 | 第一種中高層住居専用地域 | ||||||||||||||||
| 取引態様 | 仲介 | 私道面積 | - | |||||||||||||||
| 借地料 | - | 間取 | ||||||||||||||||
| 接道 | 南東 4m(幅員) 私道 | |||||||||||||||||
| 特色 | 公営水道、公共本下水、都市ガス、フラット35利用可、瑕疵担保保険、南道路 | |||||||||||||||||
|
ローンを組むにあたり、月々の返済額をシミュレーションします。
|
||||||||||||||||||
※掲載されている物件データが現状と異なる場合は現状を優先します
地図
|
|
位置情報に関するご注意:現在位置情報は精査中の為、正確ではない場合があります。あくまで参考程度の情報となります。
![]()
- ピタットハウス洗足池店
株式会社ゲンコーポレーション
- TEL:03-3726-4726
- FAX:03-3726-4736




