|
||||||
| 物件名 | 所在地 | 専有面積 | 間取 構造 |
築年月 引渡時期 |
駐車場 駐車場料金 |
|
|---|---|---|---|---|---|---|
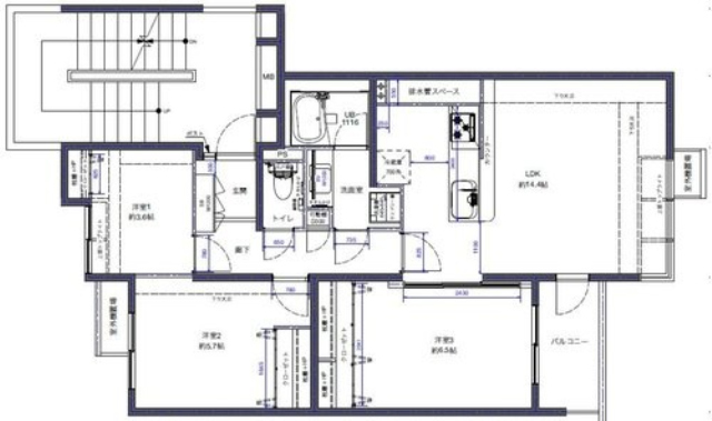
| 馬込パークハイツ | 品川区西大井5丁目 | 69.65m2 ( 21.06坪 ) | 3LDK 鉄筋コンクリート造 |
S58/01 相談 |
- |
|
| 物件番号 | Bm11993 | 取引条件有効期限 | 令和08年2月22日 | |||||||||||||||
|---|---|---|---|---|---|---|---|---|---|---|---|---|---|---|---|---|---|---|
| 交通 | 馬込駅まで 徒歩8分 西大井まで 徒歩8分 |
修繕費 | 13,500円 | |||||||||||||||
| 総戸数 | 19戸 | 階/階建 | 4階/地上4階建 | |||||||||||||||
| 取引態様 | 仲介 | 用途地域 | 第一種中高層住居専用地域 | |||||||||||||||
| 管理形態 | 全部委託 | バルコニ面積/向 | 3.92m2 / 南 | |||||||||||||||
| 特色 | 二階以上、最上階、宅配ボックス、都市ガス、リノベーション物件 | |||||||||||||||||
|
ローンを組むにあたり、月々の返済額をシミュレーションします。
|
||||||||||||||||||
※掲載されている物件データが現状と異なる場合は現状を優先します
地図
|
|
位置情報に関するご注意:現在位置情報は精査中の為、正確ではない場合があります。あくまで参考程度の情報となります。
![]()
- ピタットハウス洗足池店
株式会社ゲンコーポレーション
- TEL:03-3726-4726
- FAX:03-3726-4736


