|
||||||
| 物件名 | 所在地 | 専有面積 | 間取 構造 |
築年月 引渡時期 |
駐車場 駐車場料金 |
|
|---|---|---|---|---|---|---|
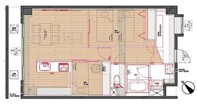
| レクセルマンション西馬込 | 大田区仲池上2丁目 | 52.8m2 ( 15.97坪 ) | 2LDK 鉄筋コンクリート造 |
H09/02 相談 |
- |
|
| 物件番号 | Bm12075 | 取引条件有効期限 | 令和08年4月30日 | |||||||||||||||
|---|---|---|---|---|---|---|---|---|---|---|---|---|---|---|---|---|---|---|
| 交通 | 西馬込駅まで 徒歩5分 | 修繕費 | 16,900円 | |||||||||||||||
| 総戸数 | 46戸 | 階/階建 | 2階/地上6階建 | |||||||||||||||
| 取引態様 | 仲介 | 用途地域 | 第一種中高層住居専用地域 | |||||||||||||||
| 管理形態 | 全部委託 | バルコニ面積/向 | 5.19m2 / 南東 | |||||||||||||||
| 特色 | エレベータ、都市ガス、リノベーション物件、ペット飼育可、二階以上、宅配ボックス | |||||||||||||||||
|
ローンを組むにあたり、月々の返済額をシミュレーションします。
|
||||||||||||||||||
※掲載されている物件データが現状と異なる場合は現状を優先します
地図
|
|
位置情報に関するご注意:現在位置情報は精査中の為、正確ではない場合があります。あくまで参考程度の情報となります。
![]()
- ピタットハウス洗足池店
株式会社ゲンコーポレーション
- TEL:03-3726-4726
- FAX:03-3726-4736


