令和07年10月16日 17時31分 更新
次回更新予定日:
ピタットハウス洗足池店 株式会社ゲンコーポレーション
新着売マンション物件情報
お急ぎの方はこちらまでお電話ください
03-3726-4726
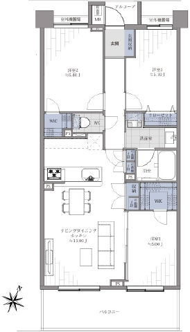
中古マンション 中古マンション 中古マンション 中古マンション
9,580万円 7,999万円 6,500万円 4,990万円
石川台駅 徒歩6分 構造:鉄筋コンクリート造専有面積:70.78平米 ( 21.41坪 )  西小山駅 徒歩8分 構造:鉄筋コンクリート造専有面積:61.53平米 ( 18.61坪 )  長原駅 徒歩12分 構造:鉄筋コンクリート造専有面積:75.78平米 ( 22.92坪 )  旗の台駅 徒歩2分 構造:鉄骨鉄筋コンクリート造専有面積:52.29平米 ( 15.81坪 ) 
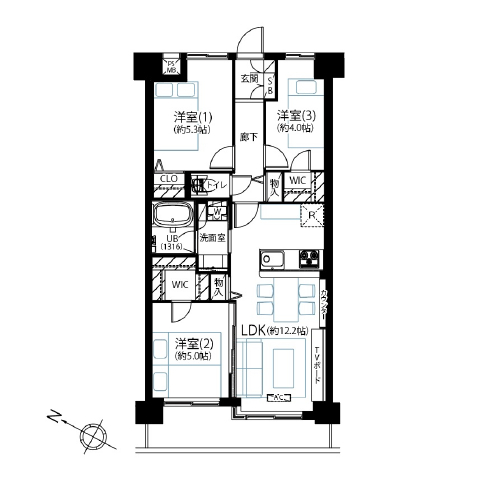
中古マンション      
5,280万円      
宮崎台 徒歩3分 構造:鉄筋コンクリート造専有面積:67.48平米 ( 20.41坪 )